Helle Büroeinheit mit 2 Nebenbereichen
12057 Berlin, Bürofläche zur Miete
Kontaktdaten
-
NameFrau Nadine Meister
-
AnschriftGroße Str. 59
15344 Strausberg -
E-Mail
-
Telefon
Objektdaten
-
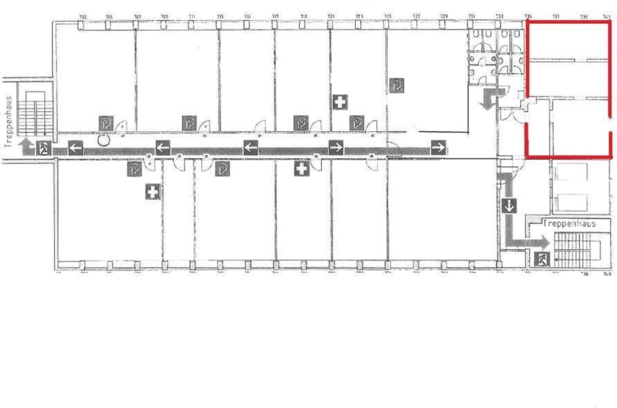
Objekt-IDBoschweg 13 // 4. OG // 50 m²
-
ObjekttypenBüro/Praxis, Bürofläche
-
AdresseBoschweg 13
12057 Berlin -
Etagen im Haus4
-
Bürofläche ca.50 m²
-
HeizungsartZentralheizung
-
Wesentlicher EnergieträgerFernwärme
-
Baujahr1967
-
Zustandgepflegt
-
AusstattungStandard
-
Stellplätze gesamt1
-
Kaltmiete449,00 EUR
-
Nebenkosten225,00 EUR
Ausstattung / Merkmale
- ✓ Personenaufzug
Energieausweis
-
EnergieausweistypVerbrauchsausweis
-
Ausstellungsdatumvor dem 1.5.2014
-
Baujahr lt. Energieausweis1967
-
PrimärenergieträgerFernwärme
-
Endenergieverbrauch347,70 kWh/(m²·a)
Objektbeschreibung
Beschreibung
Hierbei handelt es sich um ein Büro und zwei von dem Büro aus begehbare Lagerräume oder Offices ohne natürliche Belichtung.
Sonstiges
Vertragsbedingungen:
Die Grundmiete, sowie die Miete der Stellflächen erhöht sich der Mietzins jedes weitere Mietjahr um 3 %, bezogen auf die vorherige Nettokaltmiete.
Der Mieter leistet vor Übergabe der Mieträume eine Kaution in Höhe von 3 ggf. 6 Bruttowarmmieten. Sollte sich Ihr Unternehmen in Gründung befinden sind auf jeden Fall 6 Bruttowarmmieten Kaution fällig.





