Attraktiver Dreizimmerwohnung mit Terrasse im Souterrain
15378 Hennickendorf, Souterrainwohnung zur Miete
Kontaktdaten
-
NameFrau Nadine Meister
-
AnschriftGroße Str. 59
15344 Strausberg -
E-Mail
Objektdaten
-
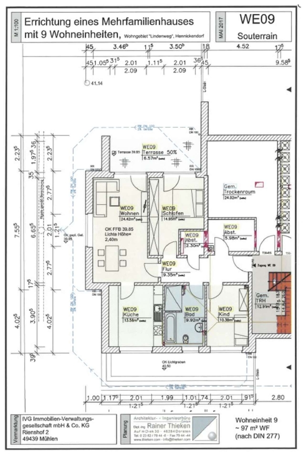
Objekt-ID31611 // NR3 // WE09 Souterrain // 97 m²
-
ObjekttypenSouterrainwohnung, Wohnung
-
AdresseNeuburger Ring 3
15378 Hennickendorf
(Rüdersdorf bei Berlin) -
Etagen im Haus3
-
Wohnfläche ca.97 m²
-
Zimmer3
-
Schlafzimmer2
-
Badezimmer1
-
HeizungsartWärmepumpe
-
Baujahr2018
-
Letzte Modernisierung2020
-
Zustandneuwertig
-
Ausstattunggehoben
-
Haustierenicht erlaubt
-
AußenstellplatzStellplatzmiete: 25,00 EUR (Anzahl: 1)
-
Kaution2764,50
-
Kaltmiete921,50 EUR
-
Nebenkosten339,00 EUR
-
Heizkostenin den Nebenkosten enthalten
-
Warmmiete1.260,50 EUR
Ausstattung / Merkmale
- ✓ Balkon/Terrasse
Energieausweis
-
EnergieausweistypBedarfsausweis
-
Ausstellungsdatumnach dem 1.5.2014
-
Baujahr lt. Energieausweis2018
-
PrimärenergieträgerKWK erneuerbar
-
Endenergiebedarf30,00 kWh/(m²·a)
-
EnergieeffizienzklasseA+
Objektbeschreibung
Beschreibung
Wunderschönes Wohnumfeld direkt am Stienitzsee:
Die hier angebotene Wohnung befindet sich in einer attraktiven Neubau-Stadtvilla im vorderen Teil des Wohnparks Neuburger Ring. Sie ist mit dem modernsten Komfort ausgestattet, insbesondere mit modernster Heiz- und Elektrotechnik.
Ausstattung
- moderne Gegensprechanlage
- modernste Elektrotechnik
- Elektrische Jalousien
- großzügiger Balkon
- Badewanne und Dusche (ebenerdig) vorhanden
- Bad und Küche türhoch und modern gefliest
- Fußboden in Kalkeiche (Vinyllaminat)
- Großzügige Kelleranlage


